Скандинавский Барнхаус 149 м² №132

Цена строительства от 9 200 000 ₽* * Стоимость не является окончательной
Заявка на консультацию
  • Общая площадь 149 м2
  • Материал стен Каркас
  • Количество этажей 1
  • Подвал Нет
  • Мансарда без мансарды
  • Гараж Нет
  • Терраса Да
  • Проживание Круглогодичное
  • Количество комнат 4
  • Количество спален 3
  • Количество санузлов 2
  • Вид проекта дом
  • Застройщик NORTH HOUSE
  • Архитектурный стиль Скандинавский
  • Отделка фасада Обшивка деревом
  • Крыша Двускатная
  • Можно купить домокомплект Нет
  • Модульный тип строения Нет
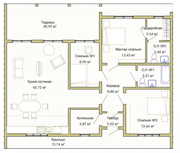
Планировки
Описание проекта

Прекрасный дом в Скандинавском стиле площадью 149м2. Этот дом является истинным фаворитом наших клиентов. Оригинальная форма крыши зонирует дом на 2 части – с высоким потолком зона отдыха в кухне-гостиной, с более низким – спальный блок.

Общая площадь дома 149м2

Теплый контур 106м2

Кухня-гостиная – 1

Спальня – 3

Гардеробная – 1

С/узел – 2

Котельная – 1

В стандартную комплектацию входит:

-переливной септик на 6м3.

-все инженерные коммуникации, включая теплый пол

-идеально ровный пол (п/сухая стяжка)

-идеально ровные стены (гипсокартон),

-фасад и кровля КЛИК ФАЛЬЦ + планкен (скрытый крепеж)

-5-ти камерные окна VЕКА с хорошей фурнитурой и мультифункциональным покрытием.

Ждем ваши заявки! С удовольствием воплотим вашу мечту в жизнь!

Выбор местоположения

Задать вопрос / написать нам

E-mail: domgis@mail.ru

Мы свяжемся с Вами в течение дня.

Тех. поддержка
Предмет обращения:
Тукущая страница

Мы свяжемся с Вами в течение дня.

Уведомление
Предмет обращения:
Тукущая страница
Обратный звонок
Обратный звонок
Выберите ваш город
Пожаловаться

Объявление опубликовано.
Изменения сохранены

Период публикации - бессрочный, при условии подтверждения актуальности каждые 50 дней. Уведомления будут отправляться на Вашу электронную почту.

Выберите причину снятия с публикации

Снятые с публикации объявления не участвуют в поиске и недоступны для подробного просмотра.

Для повторной публикации нажмите «Вернуть в публикацию»