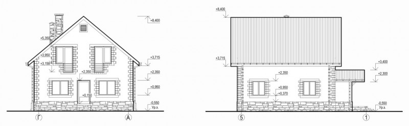
Один из самых востребованных проектов! Размеры дома 9,2 х 9,2 м. Высота 1 этажа 2,73; 2 этажа 2,78 м. В доме: 1 этаж - тамбур 4,3; прихожая 10,2; гостиная 20,8 объеденена с кухней 11; жилая комната 14,8; санузел 3,5; котельная 6 м.кв. 2 этаж - коридор 6,1; кладовая 2; 3 жилые комнаты 16,9/14,5/14,8; санузел 6 м.кв.
Фундамент - свайный ленточный. Пол бетонный. Перекрытие - ж/б плиты. Кровля мансардная. Сроки строительства: фундамент - 5-6 дн; набор достаточной прочности бетоном (НДПБ) - 7 дн; кладка наружных и внутренних стен 1 этажа- 5 дн; устройство армопояса - 1 дн; НДПБ - 5 дн; монтаж ж/б ПП и устройство армопояса вокруг плит - 1 дн; НДПБ - 3 дн+ устройство монолитного пола; кладка наружных и внутренних стен 2 этажа с устройством армопояса- 5 дн; НДПБ - 5 дн; устройство кровли - 5-7 дн. Итого 39 дней
Ориентировочная стоимость проекта из Термоблока 40см. под отделку на 2022г с учетом выгребной ямы и заведенной водой - 4 200 000 рублей. Предоставим партнеров по инженерным сетям (газ, электрика, тепло-водоснабжение), остекление, отделка
РАЗМЕР КОМНАТ:
СРОК СТРОИТЕЛЬСТВА - 39 дней
СТОИМОСТЬ:
Домокомплект толщиной 40 см - 924 967 ₽
СТОИМОСТЬ ПОД САМООТДЕЛКУ:
Стоимость дома под самоотделку (толщиной 40 см) - 4 200 000 ₽
Выбор местоположения
Мы свяжемся с Вами в течение дня.