ДНК-50/2 №760

Цена строительства от 5 040 000 ₽* * Стоимость не является окончательной
Заявка на консультацию
  • Общая площадь 50 м2
  • Длина 10.98 м
  • Ширина 6.15 м
  • Материал стен Каркас
  • Количество этажей 1
  • Подвал Нет
  • Мансарда Имеется
  • Гараж Нет
  • Терраса Да
  • Проживание Круглогодичное
  • Количество комнат 3
  • Количество спален 2
  • Количество санузлов 1
  • Вид проекта дом
  • Застройщик ДНК-СТРОЙ
  • Архитектурный стиль Барнхаус
  • Отделка фасада Металл
  • Крыша Двускатная
  • Можно купить домокомплект Нет
  • Модульный тип строения Нет
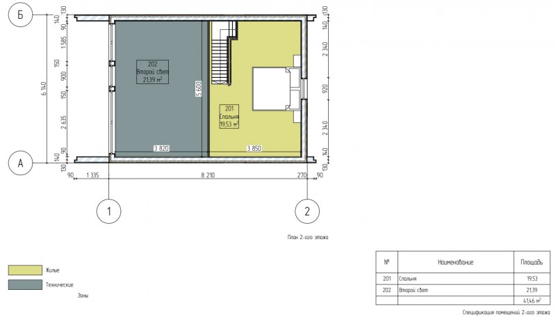
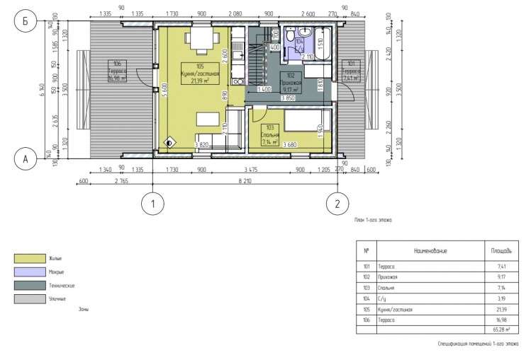
Планировки
Описание проекта

Деревянный 2- этажный дом с двухскатной крышей из 8 модулей. Открытая терраса- 25 м2. Панормное остекление. Второй свет в гостинной. Внутрення отделка- white box. Возможен вариант под ключ через партнеров. Отличное решение для гостевого дома или для небольшой семьи.


Вас может заинтересовать
Вас может заинтересовать

Выбор местоположения

Задать вопрос / написать нам

E-mail: domgis@mail.ru

Мы свяжемся с Вами в течение дня.

Тех. поддержка
Предмет обращения:
Тукущая страница

Мы свяжемся с Вами в течение дня.

Уведомление
Предмет обращения:
Тукущая страница
Обратный звонок
Обратный звонок
Выберите ваш город
Пожаловаться

Объявление опубликовано.
Изменения сохранены

Период публикации - бессрочный, при условии подтверждения актуальности каждые 50 дней. Уведомления будут отправляться на Вашу электронную почту.

Выберите причину снятия с публикации

Снятые с публикации объявления не участвуют в поиске и недоступны для подробного просмотра.

Для повторной публикации нажмите «Вернуть в публикацию»